技術支援

取扱製品風・水・冷熱機器
サービス内容選定検討
業界製鉄

技術支援の内容

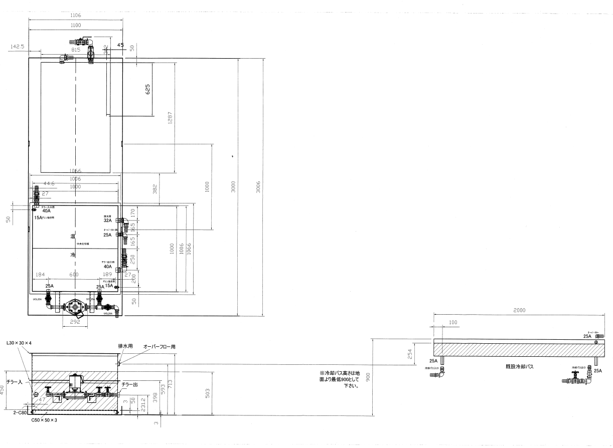
PET樹脂の冷却用循環水の冷却として、必要冷却熱量を計算してユニットクーラーを選定して、製作したドレンパンにユニットクーラーと循環ラインポンプを組付けて、冷却水循環装置として納入しました。冷熱機器の更新の際は、石川商事にご用命ください。

施工の風景